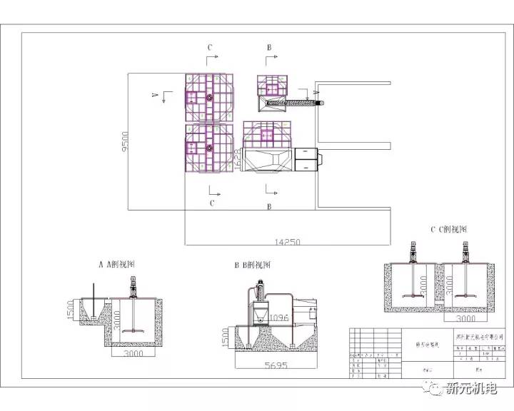
优势:
1、实现整车分离,可以罐车倒料也可以铲车倒料,彻底解决搅拌站剩料和落地灰的问题
2、取消沉淀池,彻底解决搅拌站的垃圾问题
3、实现面砂分离,延长搅拌池清底时间
4、沙水分离采用全新式旋流分离机及独特污水斗设计确保沙水的彻底分离
5、出砂口,出石口设计及进料槽的位置设计使整机出料装载机铲运无干涉
6、高度智能化、全自动制、声、光、电报警保护
7、根据场地随意摆放、灵活布置
招代理商,欢迎大家咨询
0371-56099010/13383810621

站内搜索
|
新闻中心 郑州新元取消沉淀池混凝土振动式砂石分离机
发布时间:2018-01-26 浏览次数:92 返回列表
优势: 1、实现整车分离,可以罐车倒料也可以铲车倒料,彻底解决搅拌站剩料和落地灰的问题 2、取消沉淀池,彻底解决搅拌站的垃圾问题 3、实现面砂分离,延长搅拌池清底时间 4、沙水分离采用全新式旋流分离机及独特污水斗设计确保沙水的彻底分离 5、出砂口,出石口设计及进料槽的位置设计使整机出料装载机铲运无干涉 6、高度智能化、全自动制、声、光、电报警保护 7、根据场地随意摆放、灵活布置 招代理商,欢迎大家咨询 0371-56099010/13383810621
|